FBQ941F Explosion-proof Electric Ball Valve
Product overview
Product model: FBQ941F
Nominal diameter: DN15~200mm
Nominal pressure: PN16~100MPa
Body material: WCB, 304, 316, 316L
Connection mode: flange, thread or other
Design standard: GB/T 12237, API 608, BS 5351
Connection standard: ASME B16.5, GB/T 9113, JB/T 79, HG/T 20592, HG/T 20615
Structure Length: GB/T 12221, ASME B16.10
Pressure test: GB/T 13927, API 598, GB/T 26480
Pressure-temperature rating: ASME B16.34, GB/T 12224
FBQ941F Explosion-proof electric ball valve main part material
| Part Name | Body, side body | Ball, stem | filler | Sealing ring |
| Q941F-16C Q941F-25C Q941F-40C | WCB | 2Cr13 | Teflon or flexible graphite |
Polytetrafluoroethylene, reinforced polytetrafluoroethylene, para-polystyrene |
| Q941F-16P Q941F-25P Q941F-40P | ZG1Cr18Ni9Ti | 1Cr18Ni9Ti | ||
| Q941F-16R Q941F-25R Q941F-40R | ZG0Cr18Ni12Mo2Ti | 0Cr18Ni12Mo2Ti |
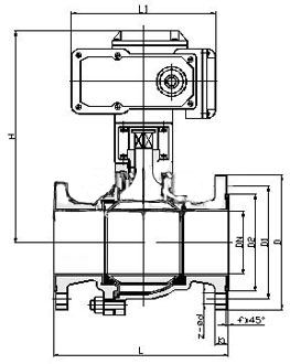
FBQ941F Explosion-proof electric ball valve main dimensions

| PN1.6 (MPa) | |||||||||
| Path (DN) | L | D | D1 | D2 | b | H | Zd | weight | Drive |
| 15 | 130 | 95 | 65 | 45 | 14 | 352 | 4-14 | - | LQ51 |
| 20 | 130 | 105 | 75 | 55 | 14 | 355 | 4-14 | - | LQ51 |
| 25 | 140 | 115 | 85 | 65 | 14 | 360 | 4-14 | 8 | LQ51 |
| 32 | 165 | 135 | 100 | 78 | 15 | 386 | 4-18 | 13 | LQ5-1 |
| 40 | 180 | 145 | 110 | 85 | 16 | 394 | 4-18 | 17 | LQ5-1 |
| 50 | 200 | 160 | 125 | 100 | 16 | 472 | 4-18 | 25 | Q10-6 3/4 |
| 65 | 220 | 180 | 145 | 120 | 18 | 486 | 4-18 | 60 | Q10-6 3/4 |
| 80 | 250 | 195 | 160 | 135 | 20 | 579 | 8-18 | 65 | Q30-6 3/4 |
| 100 | 280 | 215 | 180 | 155 | 20 | 595 | 8-18 | 75 | Q30-6 3/4 |
| 125 | 320 | 245 | 210 | 185 | 22 | 650 | 8-18 | 97 | Q60-4 3/4 |
| 150 | 360 | 280 | 240 | 210 | 24 | 739 | 8-23 | 162 | Q120-2 3/4 |
| 200 | 400 | 335 | 295 | 265 | 26 | 799 | 12-23 | 226 | Q120-2 3/4 |
| 250 | 533 | 406 | 362 | 324 | 30 | 890 | 12-25 | - | - |
| 300 | 610 | 483 | 432 | 381 | 32 | 940 | 12-25 | - | - |
Reminder:
All text, data and pictures in this article are for reference only.To see more details of the FBQ941F Explosion-proof Electric Ball Valve performance parameters, structural dimension parameters, pricing, etc., or to request high quality printing samples, please Contact us.